イーストコート3番街
Top pageCONTENTS →暮らしの設備
暮らしの設備

イーストコート3番街概要

 六甲アイランドは、神戸市が都市建設の総てのノウハウを投入して作った、海上未来都市です。特に地盤に関しては、土木工学の優秀さを証明しました。六甲アイランドの居住区(シティヒル内)は、15億円を費やした地盤対策の効果があり阪神淡路大震災でも液状化はありませんでした。また、都市機能の総てを備えていながら、リゾートらしいくつろぎを持った街です。1988年のウェストコート4番街の入居からスタートし、34年を経て、2023年6月現在19400人が居住しています。そのなかでも、イーストコート3番街は、六甲アイランドのシンボルとしての超高層住宅です。阪神淡路大震災にも、その安全性は証明されました。イーストコート3番街の北側階段の壁には、この建物の建設にたづさわった人の名前が名板に刻まれています。
 いま、社会が成熟・高齢化を迎えていっているなか、イーストコート3番街のエレベータ全階停止、車いす対応のスロープ設備等は人気を呼んでいます。また、現在住んでいるひと、過去住んだ人の評価でも、「六甲アイランドが良い。E3が良い。」というのが一致した意見です。

 イーストコート3番街の超高層ビルは、超高層住宅としては、神戸市で最初の建物です。健全に維持管理されております。2024年から、1年かけて、雑排水管の機能回復のため、更生工事を実施しました。138mの超高層住宅での更生工事は、国内でも最大級の工事でした。

《建築物概要》
【所在地】658-0032神戸市東灘区向洋町中1丁目10番地101号棟
【用途地域・指定】住居地域 建蔽率60%容積率300%
【事業主】六甲アイランド開発(株) 積水ハウス(株) アーバンライフ(株)
【設計・施 工】竹中工務店
【構 造】住棟: 鉄骨鉄筋コンクリート造 地下1階 地上41階
        建鉄筋コンクリート造
   駐車場棟: 鉄筋コンクリート造 2階建
【高 さ】138 m
【敷地面積】17870.24 m2 (5415.2坪)
【建築面積】10454.11 m2
【延床面積】88034.72 m2
【総 戸 数】465 戸(管理用住戸1戸含む)
【駐 車 場】466 台(管理用2台含む)  屋内414台  屋外50台
【工 期】平成元年2月~平成3年10月(31ヶ月)
【入居開始】平成3年12月(1991年)
【延作業員数】133274人
【大修繕工事】1995年 地震修理工事   竹中工務店
       2003年 第1回大修繕    竹中工務店
       2019年 第2回大修繕    竹中工務店
       2023年 駐車場棟大修繕  建装工業
       2024年 雑排水管更生工事 タイコー
設備概要
《概要仕様》(第2次募集時販売資料)
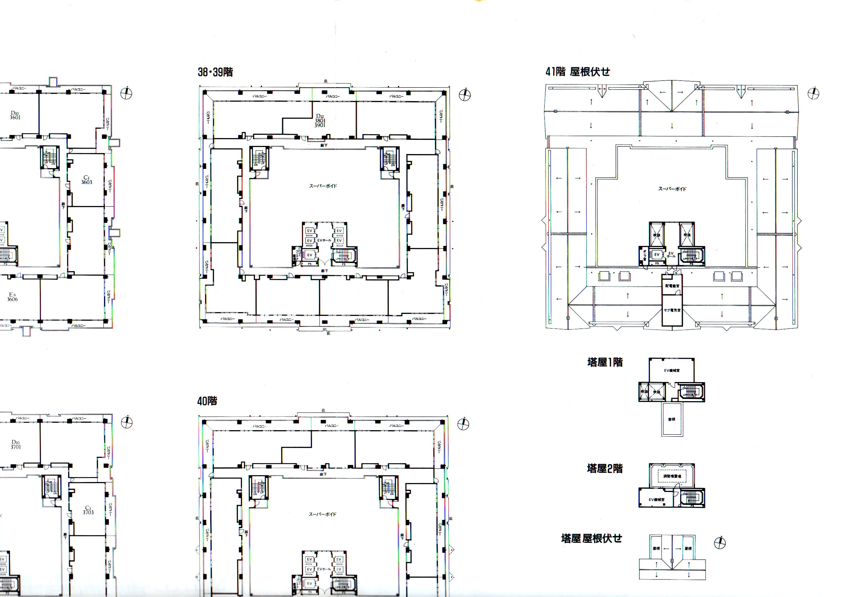
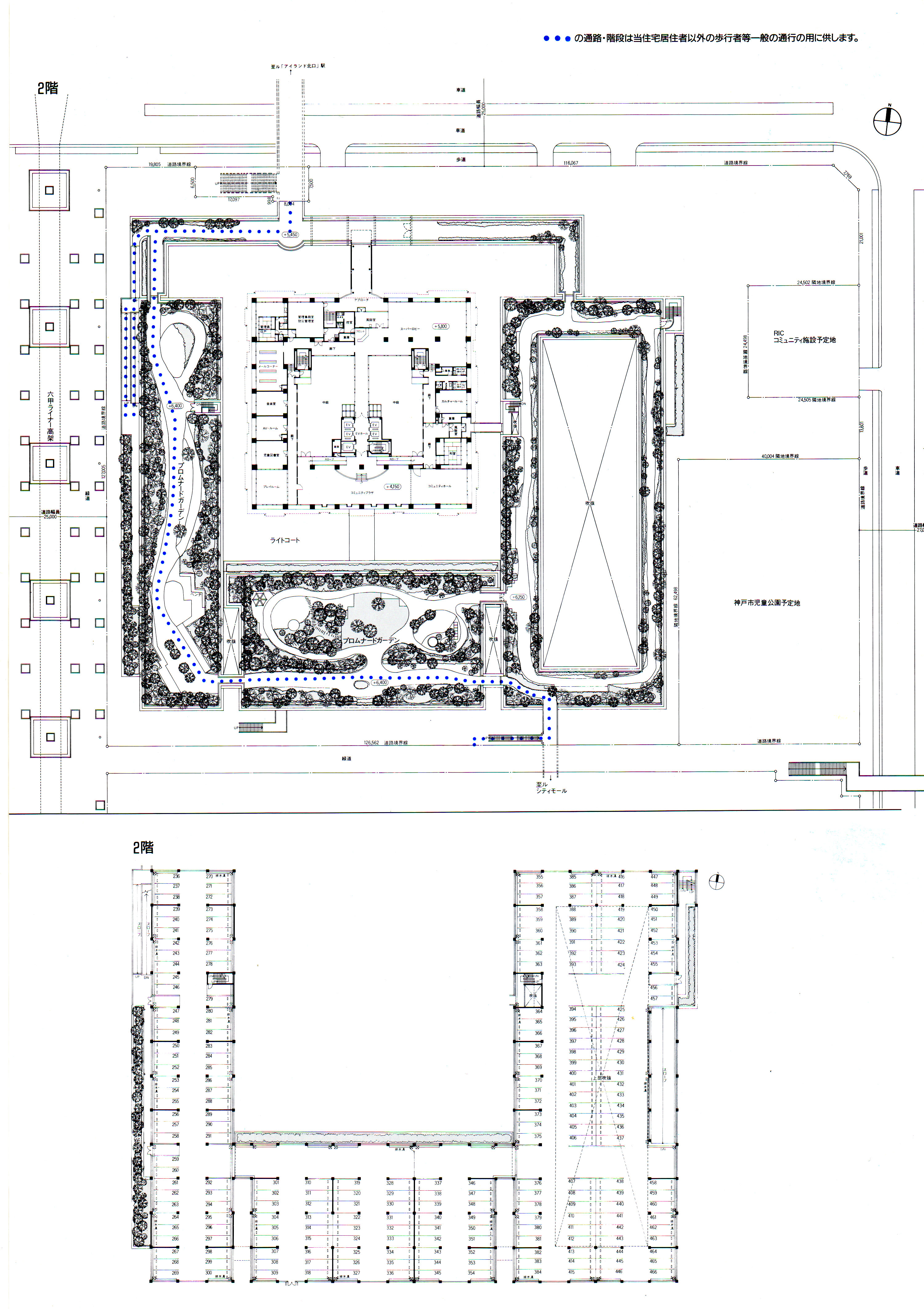
《図  面》地下室図面 1階図面 2階共用部図面
 
2階3階平面図 低層階平面図 最上階平面図
《管理会社》 積水ハウスGMパートナーズ株式会社
《居住者の現況》
 新規分譲賃貸入居数 10戸 464戸の2.2 %(2023.1月~12月)
 賃貸戸数      40戸 464戸の8.6 %(2024.05.31)
 高齢単身戸数    50戸 464戸の10.8%(2024.05.31)
 駐車場契約数    396台 517台の76.6%(2023.11.30)



 

 

外観

駅直結


《交通》(Rinkの各時刻表は2023.11.24現在)
 JR神戸線「住吉駅」、阪神本線「魚崎駅」から六甲ライナー「アイランド北口駅」より徒歩2分。朝7:10北口発で乗ると、7:26住吉駅発JR快速で、7:49に大阪駅に着きます。所要時間39分。六甲ライナー住吉発最終0:26(平日)
 阪急神戸線「岡本駅」から徒歩「JR摂津本山」「JR住吉」・「六甲ライナー住吉」から「アイランド北口」は、以外に早いです。
 阪急神戸線「御影駅」からみなとバスにより25分で、アジアワンセンター(P&G前)まで。「神戸ベイシェラトンホテル前」から新神戸駅まで、三宮経由で30分
 神戸ベイシェラトンホテルから関西国際空港まで直通空港バスで57分
湾岸道路が混んでいる場合は、神戸空港海上アクセスも便利です。車なら、空港まで30分。海上アクセス用無料駐車場に車を置き、40分で関空ターミナルビルです。神戸空港まで、アイランド北口から、ポートライナー神戸空港駅まで50分,自家用車で、ハット神戸を通過し、海底トンネルで、30分 無料駐車場に駐車。 
車の便もよく、阪神高速湾岸線経由で大阪北浜まで35分ほどで行けます。
また、阪神高速5号湾岸道路西伸により、六甲アイランドが、東西通過の中間に位置し西方向へのアクセスが改善し、外部から訪問しやすくなります。


アクセス


超高層
 イーストコート3番街は、超高層マンションです。阪神淡路大震災の被害も軽微でした。この震災によって、3番街の超高層建築の耐震性が、証明されました。
 ニューヨークに1931年建てられた、381m102階建てのエンパイヤーステートビルは、79年を経ていますが、今なお健在です。超高層建築は維持管理が適切におこなわれれば、このように長年に渡って使用が可能です。
E3は、32年経過しております。使用コンクリートは、建物位置によって強度が異なりますが、下部では100年耐久以上の物が使用されています。今後100年使用をめざして維持管理し、時代に応じた機能更新も行っていきます。
 イーストコート3番街   1991年 138m   41階 (34年)
 エンパイヤステートビル 1931年 381m 102階 94年
 クライスラービル    1930年 319m  77階 95年
 トランプビル        1930年 283m  71階 95年
 G.Eビル             1933年 259m  70階 92年

外観2

駐車場100%
 
駐車場は、1戸に1台分あります。
六甲アイランド内で、100%駐車場があるのは、他の街区では、ウェストコート3番街だけです。
 しかも、E3は、総て自走式のため、機械式で受け入れられないサイズの乗用車も可能です。
さらに、2階建駐車場の台数のうち90%が、屋内駐車場であるため、太陽光、雨水による車の傷みが極めてすくなくなります。
 また、台数が100%完備のため、空き駐車場まで、発生しております。そこで、そのうち15台を他の不足しているマンションのために、賃貸駐車場として貸し出しが可能となって、管理費に充当しています。

駐車場
    駐車場棟 2階部分(屋根無し50台) 

バリアフリー
 1階、2階の出入り口は、車椅子対応の自動扉です。
エレベータは、5台あり、全階に停止します。また、そのうち1台は、大型エレベータで、車椅子対応のスイッチも、ついています。
 各階の廊下は、段差もなくスロープになっています。
また、個人の住戸の扉も、理事会の承認により、自動扉化用駆動装置をつけることができます。
 イーストコート3番街は、車椅子へ配慮した永住の住まいとしての機能を備えています。また、その目的で島の他の街区から、引越しされる方もおられます。


駅直結
 六甲ライナーのアイランド北口駅から、徒歩2分の距離です。北口駅と建物は、陸橋で結ばれており、傘がなくても走れば、あまり濡れないで、家にかえりつきます。


環境対応

・屋上緑化
駐車場の屋上は、緑化され、公道として開放されています。また、芝生と樹木の植えられた庭園となっています。組合主催でのバーべキューパーティーは、この庭園で開かれます。

・スーパーボイド
建物の中央部は、最上階まで抜ける吹き抜け(ボイド)になっています。
廊下に面した玄関扉に網戸を付ければ、ボイドのドラフト効果により、ベランダ側の窓から、自然の風が通りぬけます。(火災の際の排煙機能を持っています。)

・地域温水供給システム
島内のスラッジ焼却炉の温水を、地下の機械室で、熱交換し、飲用水を温水に温め、風呂および温水蛇口に供給しています(w3,4,5,6 E2.3.4,5,6)冬場でも少しの追い炊きで済み、燃料を節約しています。


インターネット通信
 当マンションには、光ファイバー回線が来ており、フレッツ光を始め、ほとんどの光回線接続が可能です。また、JCOMのケーブルインターネット等のいずれの方法も選択することができます。


完備した共用設備 WiFiサービス

2F共用施設では、全室、全フロアーにおいて、WiFiが可能です。
有料の共用施設は、料金を払えば個人的に使用できます。
また、共用部の使用申し込みは、フロントに申込ください。
共用施設のご案内

・コインランドリー
共用施設として、1階南側に大型コインランドリー、布団乾燥機を備えた部屋があり、24時間使用することができます。すぐ隣に、プレイロットもあり、子供をガラス越しにあそばせながら、洗濯の終了を待つこともできます。 
 

  機 械 名  台     料 金
 電気洗濯機 4      200円/回
 ドラム式電気乾燥機  4     100円/30分
 布団乾燥機  1     100円/60分


・AVルーム(有料)
防音処置の整った、ビデオルームがあります。
・カルチャールーム(有料)
英会話教室等が開かれています。
・和 室(有料)
お茶、お花、習字等の教室が開かれています。
・コミュニティーホール(有料)
100m2の会議室です。
・コミュニティープラザ(南側 無料
居住者くつろぎのコーナーです。ちょっとした打合せや商談もできます。
・ラウンジ(無料・有料)
コミュニティーホールと同じ用途で、28階にラウンジがあります。ここからの六甲の夜景は、超高層でないと味わえないものです。パーティーでは飲食も可能です。専用使用(有料)の予約も受け付けております。お子さんの誕生会や家族の記念の集いにどんどん御使用ください。
音楽室(有料)
素敵な仲間達と、ピアノ発表会やミニコンサートが開けます。
・学習室(無料)
いつも熱心な学生が勉強しています。8席ほどあります。保温マットも設備されています。仕事をやり残したお父さんもどうぞ。
・プレイルーム(無料)
雨の日でも、子供を遊ばせることができます

自動ドア

  駅直結
   アイランド北口駅駅直結 徒歩2分

  屋上緑化
       屋上緑化

  スパーボイド
      スーパーボイド

   
  コインランドリ-

  ラウンジ
  コミュニティープラザ(南側)

  
  28階ラウンジ 
  
  
  学習室

安全設備

・セキュリティーシステム

       セキュリティ

居室のガス感知器が作動しますと、防災管理室に警報がでますので、すぐに、セキュリティーホンから、問い合わせをおこないます。応答がない場合は、すぐに、警備員が急行します。
各部屋の火災報知機が作動しますと、防災管理室と警備会社に警報がでます。両方から警備員が現場に急行します。

・テレビ付きセキュリティーホン
2階玄関、1階通用口に来た来客の姿を、テレビで確認できます。そのうえで、扉を開けるか判断できます。
・ドアオートロックシステム
玄関口は、通常ロックされており、鍵を使って入るようになっています。
また、扉の開閉の確認を、ドアホンのパネルでできます。
・火災自動警報システム
感熱式火災報知器が、各部屋に備えられています。ドアホンから「火事です!」という緊急通報がでます。
・駐車場ロボットゲート
駐車場は、ロボットゲートとなっており、出入りの際は、リモコンを使って、開けます。


便利なサービス


①新  聞
新聞の朝刊は、毎朝、住戸の扉の横の新聞受けに、届けられます。

②ゴミ収集
ゴミは、日曜、祝日を除く毎日、収集されます。しかも、住戸の扉の前に置くだけで、収集されます。
イーストコート3番街は、ゴミ専用の冷蔵庫が、1階に設備されており、神戸市の収集のない日も、こちらで一時保管されますので、そのようなサービスが可能となっています。

③フロントサービス
ホテルを思わせるフロントには、受付女性がおり、宅配便の受付から、六甲ライナーの回数券の販売まで、その他様々なサービスを行います。
また、廃品回収をお知らせする場内アナウンスも行っております。英語のごみ収集掲示も行っており、外国人居住者への利便も図っております。
無料のビジター用駐車場も多数用意しています。フロントに申し込みください。

④安全・警備
昼間は、ライフマネージャーが、安全管理をしております。
夜間は、ガードマンが、警備しております。

テレビ付きドアホン

 

 

 

 

ロビー

イーストコート3番街